如何设计定制壁橱吗
几乎在每一个室内设计项目,我使我有一个需要设计的内置家具。在家里安装衣柜流行的存储解决方案。江南彩票app下载没有惊喜,通常我们必须处理有限的空间和定做衣柜每厘米在其最大允许我们使用。
设计你的第一个定制衣柜可以似乎是一项艰巨的任务,掌握这个技能唯一的秘诀就是练习,练习,再练习。在这篇文章中我想描述algorythme工作,我希望这对你会有用的。
- 风格的衣柜(它必须匹配与房间的整体风格,除非你要的折衷的看)
- 衣柜的颜色
- 材料(例如,自然单板或画MDF)
- 存储需求(问客户他们有多少衣服,他们喜欢把它存储在衣架或折叠,如果有任何大型物品商店,像行李箱,例如)
3所示。寻找一些灵感。设计定制家具并不意味着你必须重新发明轮子,所以它是好的在你开始之前环顾四周。
4所示。想与你的笔,画总是帮助我探索各种想法和提出不同的解决方案。我通常在4 - 5不同版本的1项。

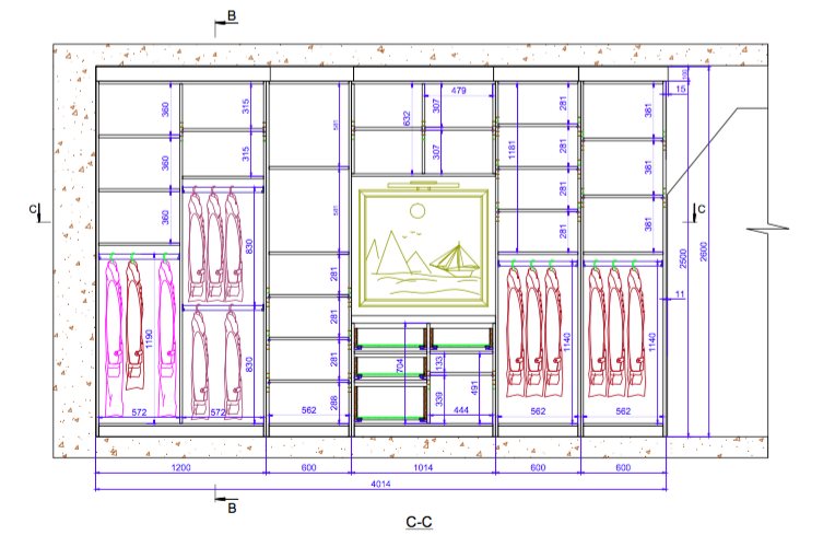
5。同时构造函数从家具公司准备技术图纸:


我们展示给客户,并讨论如果需要做任何更改。
6。最后阶段是3 d效果图。可视化也帮助我们完善的设计和尝试不同的纹理和颜色选择,效果最好。这是我设计的衣柜我目前的项目:



7所示。最后但不是最少,别忘了与客户签订的所有图纸在发送项目之前制造。
开始自己的室内设计的职业生涯吗?看看我的室内设计师的电子书市场。瓶里装的是有效的营销工具,将帮助你增长你的客户:

